鹿児島市 ワークスペース付き2階建て|大きな吹き抜けのある家
大きな吹き抜けからやさしい光が差し込む、ナチュラルテイストの2階建てのお住まい。
ペニンシュラキッチンを中心に家族の気配を感じられるLDKに、ほどよくこもれるワークスペースをプラスしました。
造作洗面台や各所に設けた豊富な収納で、毎日の使いやすさにも配慮。
鉄骨手すりの階段が、空間全体を引き締めながら吹き抜けの開放感をより一層引き立てています。
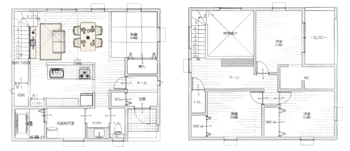
間取り図POINT

見どころPOINT
シャープな片流れ屋根の外観

シンプルなフォルムに片流れ屋根を組み合わせ、すっきりとした印象に。ナチュラルな素材感が街並みにやさしくなじみます。
家族がのびのび過ごせる広々LDK

視線が抜けるレイアウトで、実際の帖数以上の開放感。家族が自然と集まる、心地よいリビングです。
光をたっぷり取り込む大きな吹き抜け

上下階をゆるやかにつなぐ吹き抜けが、明るさと開放感をプラス。時間帯ごとに表情が変わる空間です。
toolboxの横長造作洗面台

横並びで使える造作洗面台は、朝の身支度もスムーズ。シンプルで洗練されたデザインが空間に映えます。
ヘリンボーン床が可愛いランドリールーム

毎日の家事がちょっと楽しくなる、デザイン性のあるランドリールーム。見た目も機能も妥協しない空間です。
踊り場を活かしたワークスペース

階段の踊り場を有効活用したワークスペース。ほどよいこもり感で、仕事や勉強にも集中できます。
広くて落ち着く主寝室

ゆとりある広さを確保した主寝室は、1日の疲れを癒す落ち着いた空間。インテリアも楽しめます。
和室に設けた大容量収納

来客時にも使いやすい和室に、たっぷり収納をプラス。布団や季節物もしっかり収まります。
階段下を活かしたたっぷり収納

デッドスペースになりがちな階段下も、しっかり収納に。日用品や掃除道具の置き場に便利です。
パントリー&物入で収納充実

キッチンまわりから各所まで、収納を豊富に計画。片付けやすく、すっきり暮らせる住まいです。